Vielseitig - 3 Zimmer nahe Donauzentrum – Provisionsfrei f. Käufer // Multifunctional - 3 rooms near Donauzentrum – Buyer commission free! //
Valmacor Objekt Nr.: 3358/1854
Weitere Angebote auf www.VALMACOR.at
Nur wenige Minuten von U1- Alte Donau entfernt, zwischen Donauzentrum und Alte Donau, wird eine neue hochwertige Niedrigstenergie-Hausanlage mit Urlaubsflair errichtet. Nicht nur die Infrastruktur ist einmalig, denn die Lage verbindet Entspannung mit City Nähe durch fantastische Verkehrsanbindung sowie exzellente Bildungseinrichtungen, Einkaufs- und Erholungsmöglichkeiten.
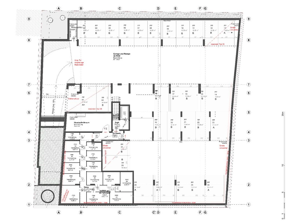
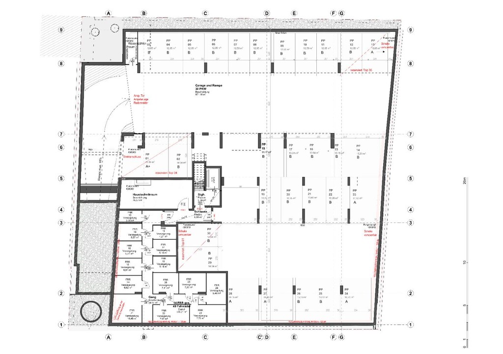
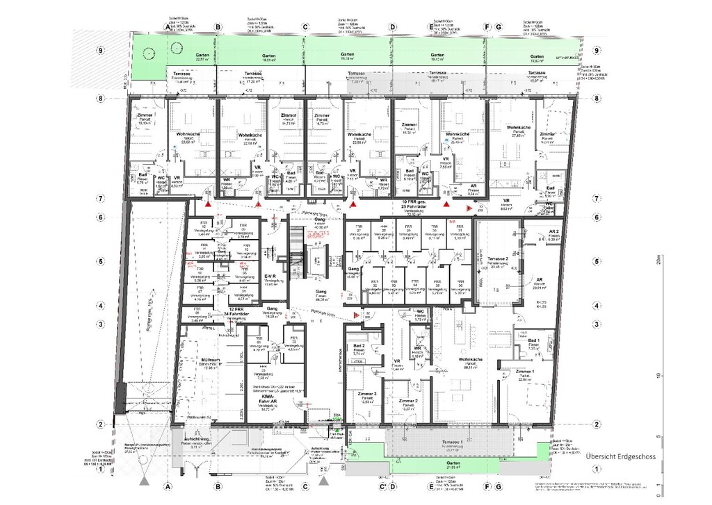
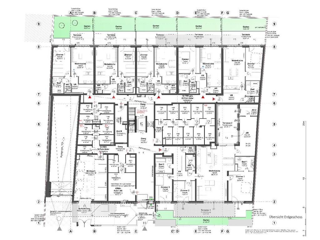
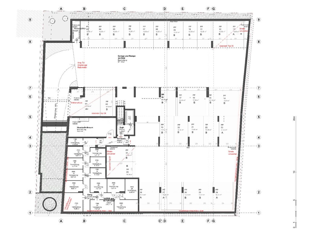
Die Wohnanlage ist exklusiv und bietet Platz für 12 Wohneinheiten, ist voll unterkellert und hochwertig ausgestattet. Eine hellbeleuchtete Tiefgarage sorgt für bequemes und sicheres nach Hause kommen. Ein eigener Kellerabteil sowie versperrbare Fahrrad- und Kinderwagenabstellräume und Liftzugänge sorgen für einfache und geschützte Aufbewahrung und Handhabung.
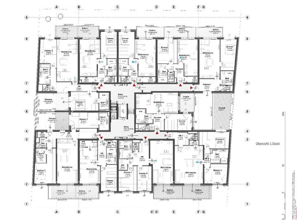
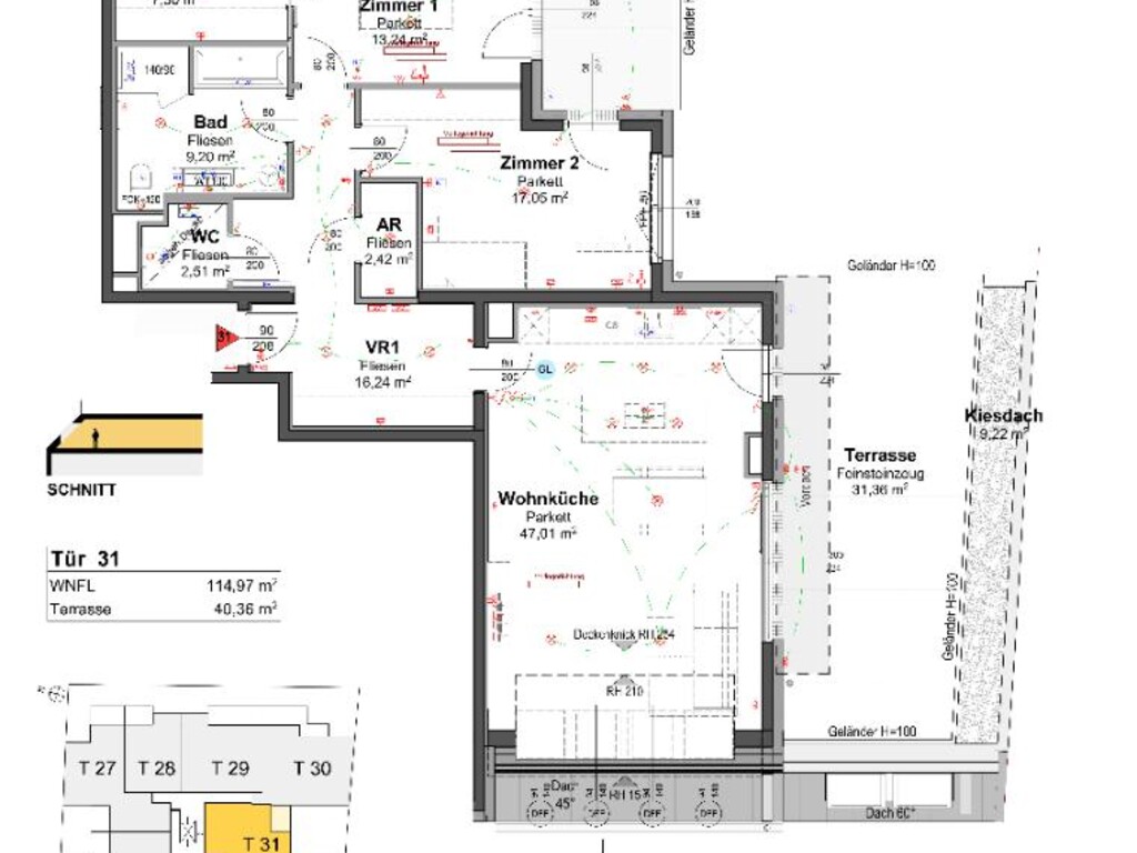
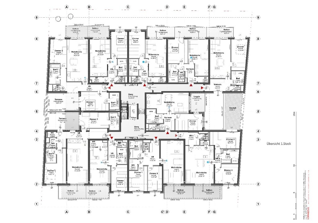
Die Top 105 ist eine 86 m², 3 Zimmerwohnung mit 12 m² Terrasse und befindet sich im 1. DG des Hauses. Der Schnitt ist sehr kompakt und effizient. Man kommt in der Wohnung in einen grosszügigen Flur mit viel Garderobenplatz. Auf einer Seite befinden sich ein Abstell-/Wirtschaftsraum, eine Toilette und das Bad mit Dusche, Badewanne und Toilette. Auf die andere Seite sind ein Schlafzimmer sowie das Wohnzimmer. Vom Wohnzimmer ist die 2 Schlafzimmer begehbar. Das Wohnzimmer ist grosszügig, hat eine offene Küche und Ausgang auf eine schöne Terrasse.
Die Ausstattung ist hochwertig, modern und auf Komfort und Energieeffizienz bedacht. Die Wohnung verfügt über eine Sicherheitseingangstür, Fussbodenheizung und Deckenkühlung über der hauseigenen Wärmepumpe, dreifach verglaste Fenster sowie elektrisch steuerbare Raffstores, ausreichend Steckdosen, Internet- und Datenanschlüsse u.v.m.
Parkplätze stehen in der hauseigenen Tiefgarage gegen Aufpreis ab EUR 42.900 zur Verfügung. Der Baurechtszins für diese Einheit beträgt 281 EUR/Monat.
Für den Käufer provisionsfrei!
Hat diese Immobilie Ihr Interesse geweckt?
Dann fragen Sie unverbindlich an, Hr. DI Corneliu TANASESCU steht Ihnen unter +43 699 118 22 583 gerne beratend persönlich zur Verfügung.
Entspricht das Objekt nicht Ihren Vorstellungen? Weitere Angebote finden Sie auf
www.VALMACOR.at
Wir behandeln Sie besser!
________________________________
Valmacor Object Nr.: 3358/1854
More offers on www.VALMACOR.at
Only a few minutes away from U1- Alte Donau, between Donauzentrum and Alte Donau, a new high-quality low-energy house complex with vacation flair is being built. Not only the infrastructure is unique, because the location combines relaxation with city proximity through fantastic transport links as well as excellent educational institutions, shopping and recreational opportunities.
The residential complex is exclusive and offers space for 12 residential units, has a full basement and is equipped to a high standard. A brightly lit underground parking garage ensures comfortable and safe arrival at home. A private cellar compartment as well as lockable bicycle and children´s guardian storage rooms and elevator access provide for easy and protected storage and handling.
Top 105 is an 86 m², 3 room apartment with 12 m² terrace and is located on the 1st floor of the house. The cut is very compact and efficient. You enter the apartment into a spacious hallway with plenty of wardrobe space. On one side there is a storage/utility room, a toilet and the bathroom with shower, bathtub and toilet. On the other side is a bedroom as well as the living room. From the living room is accessible to the 2 bedrooms. The living room is spacious, has an open kitchen and exit to a beautiful terrace.
The equipment is high quality, modern and focused on comfort and energy efficiency. The apartment has a security entrance door, underfloor heating and ceiling cooling via the in-house heat pump, triple-glazed windows as well as electrically controlled Venetian blinds, sufficient sockets, internet and data connections and much more.
Of course COMMISSION FREE for the buyer! Parking is available in the on-site underground car park for an additional fee of EUR 42,900. The ground rent for this apartment amounts EUR 281/month.
Has this property awaken your interest?
If so please request your personal unbinding offer, Mr. Corneliu TANASESCU will remain personally at +43 699 118 22 583 available for any question or advisory consultancy that you may need.
Doesn’t this object correspond to your requirements? You may find further offers on
www.VALMACOR.at
We treat you better!
| Angaben gemäss gesetzlichem Erfordernis: | |||
| Heizwärmebedarf: | 30.0 kWh/(m²a) | ||
| Faktor Gesamtenergieeffizienz: | 0.68 | ||
| Object # 1854 | |
|---|---|
| Number of rooms | 3 |
| Living area | 86 m² |
| Extra charges | € 448,00 |
| Can be used starting at | sofort |
| Price for buying | € 659.900,00 |
| House type | Wohnung |
| Floor | 2 |
| Number of floors | 1 |
| Number of bedrooms | 2 |
| Number of bathrooms | 1 |
| Type of heating | floor heating |
| Year of construction | 2024 |
| Condition | first occupancy |
| Balcony/patio | yes |
| Elevator | yes |
| Barrier-free | yes |
| Energy performance certificate type | requirement |
| Heat energy requirement value | 30 |
| Total energy efficiency value | 0.68 |
Address
Wien 22., Donaustadt
Österreich
Price for buying
€ 659.900,00


























