De-luxe Gartenwohnung an der Alten Donau – Provisionsfrei f. Käufer // De-luxe garden apartment at the Old Danube – Buyer comm. free! //
Valmacor Objekt Nr.: 3358/1875
Weitere Angebote auf www.VALMACOR.at
Nur wenige Gehminuten von U1- Alte Donau entfernt, wird eine neue, hochwertige Niedrigstenergie-Hausanlage mit Urlaubsflair in unmittelbarer City Nähe/UNO auf EIGENGRUND errichtet. Nicht nur die Infrastruktur ist einmalig, denn die Lage verbindet Entspannung mit City Nähe durch fantastische Verkehrsanbindung sowie exzellente Bildungseinrichtungen, Einkaufs- und Erholungsmöglichkeiten.
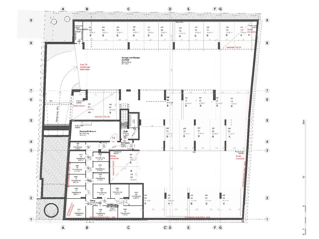
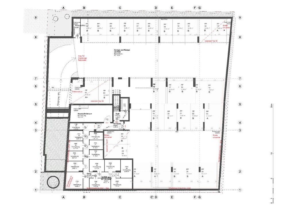
Die Wohnanlage ist sehr exklusiv und bietet Platz für 7 Wohneinheiten, ist voll unterkellert und hochwertig ausgestattet. Eine hellbeleuchtete Tiefgarage sorgt für bequemes und sicheres nach Hause kommen. Ein eigenes Kellerabteil sowie versperrbare Fahrrad- und Kinderwagenabstellräume und Liftzugänge sorgen für einfache und geschützte Aufbewahrung und Handhabung.
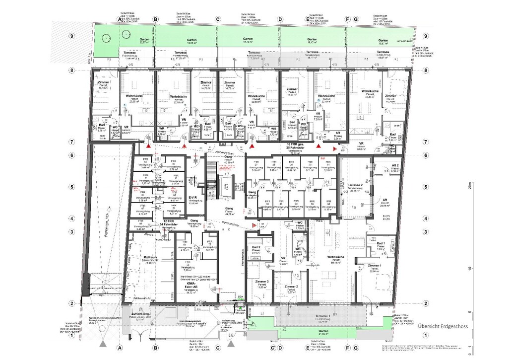
Die Top 201 ist eine 92 m², 3 Zimmerwohnung mit 37 m² Terrassen und 71 m² Eigengarten. Alle Zimmer sind getrennt begehbar. Zur Verfügung stehen im Erdgeschoss ein grosses Wohn-zimmer mit offener Küche und Ausgang in einem süd- und ostseitigen Garten, 2 Schlafzimmer, beide mit eigenen Terrassen/Gartenausgang, ein grosses Bad mit walk-in Dusche, Badewanne und Toilette, ein Wirtschaftsraum und eine separate Toilette. Das Untergeschoss ist voll wohnfähig und bietet Platz für ein Büro/Hobbyraum und ein weiteres Bad. Von hier kann man die Garage direkt erreichen.
Die Ausstattung ist hochwertig, modern und auf Komfort und Energieeffizienz bedacht. Die Wohnung verfügt über eine Sicherheitseingangstür, Effizientes Fussbodenheiz- und Deckenkühlsystem mit Wärmepumpe, Photovoltaik am Dach für die allgemeine Teile des Hauses, dreifach verglaste Fenster sowie elektrisch steuerbare Raffstores und ausreichend Steckdosen, Internet- und Datenanschlüsse.
Parkplätze stehen in der hauseigenen Tiefgarage gegen Aufpreis ab EUR 42.900 zur Verfügung.
Mit EUR 1.499.900 ist diese Wohnung ein Angebot das Seltenheitscharakter hat. Als Anlageobjekt wäre diese Immobilie für EUR 1.301.907 zu haben. Alles PROVISIONSFREI für den Käufer!
Hat diese Immobilie Ihr Interesse geweckt?
Dann fragen Sie unverbindlich an, Hr. DI Corneliu TANASESCU steht Ihnen unter +43 699 118 22 583 gerne beratend persönlich zur Verfügung.
Entspricht das Objekt nicht Ihren Vorstellungen? Weitere Angebote finden Sie auf
www.VALMACOR.at
Wir behandeln Sie besser!
_____________________________
Valmacor Object Nr.: 3358/1875
More offers on www.VALMACOR.at
Only a few minutes walk from U1- Alte Donau, a new high-quality low-energy house complex with vacation flair is being built in the immediate vicinity of the city/UNO. Not only the infrastructure is unique, because the location combines relaxation with city proximity through fantastic transport links as well as excellent educational institutions, shopping and recreational opportunities.
The residential complex is very exclusive and offers space for 7 residential units, has a full basement and is equipped to a high standard. A brightly lit underground parking garage ensures comfortable and safe coming home. A private cellar compartment as well as lockable bicycle and children´s guardian storage rooms and elevator access provide for easy and pro-tected storage and handling.
The Top 201 is a 92 m², 3 room apartment with 37 m² terraces and 71 m² private garden. All rooms are separately accessible. The first floor offers a large living room with open kitchen and exit to a south- and east-facing garden, 2 bedrooms, both with own terraces/garden exit, a large bathroom with walk-in shower, bathtub and toilet, a utility room and a separate toilet. The basement is fully livable and offers space for an office/hobby room and another bath-room. From here you can reach the garage directly
The equipment is high quality, modern and focused on comfort and energy efficiency. The apartment has a security entrance door, Efficient underfloor heating and ceiling cooling system with heat pump, photovoltaic on the roof for the general parts of the house, triple glazed windows as well as electrically controlled Venetian blinds and sufficient plug sockets, internet and data connections.
Parking is available in the on-site underground car park for an additional fee of EUR 42,900.
With only EUR 1.499.900 this apartment is an offer with rare character. As investment, the object is available for EUR 1,301,907. Of course COMMISSION FREE for the buyer!
A more detailed description of the construction and fittings can be provided upon request.
Has this property awaken your interest?
If so please request your personal unbinding offer, Mr. Corneliu TANASESCU will remain personally at +43 699 118 22 583 available for any question or advisory consultancy that you may need.
Doesn’t this object correspond to your requirements? You may find further offers on
www.VALMACOR.at
We treat you better!
| Angaben gemäss gesetzlichem Erfordernis: | |||
| Heizwärmebedarf: | 34.0 kWh/(m²a) | ||
| Faktor Gesamtenergieeffizienz: | 0.68 | ||
| Objekt Nr. 1875 | |
|---|---|
| Zimmeranzahl | 3,5 |
| Wohnfläche ca. | 92 m² |
| Betriebskosten | € 337,00 |
| Frei ab | In Bau |
| Kaufpreis | € 1.499.000,00 |
| Immobilientyp: | Wohnung |
| Anzahl Etagen | 2 |
| Anzahl Schlafzimmer | 3 |
| Anzahl Badezimmer | 2 |
| Heizungsart | Zentralheizung, Luft-Wärmepumpe |
| Baujahr | 2025 |
| Zustand | Erstbezug |
| Balkon/Terrasse | ja |
| Garten/-mitbenutzung | ja |
| Personenaufzug | ja |
| Energieausweisart | Bedarf |
| Heizwärmebedarf-Wert | 34 |
| Gesamtenergieeffizienz-Wert | 0.68 |
Adresse
Wien 22., Donaustadt
Österreich
Kaufpreis
€ 1.499.000,00






