Kleine Perle im ultramodernen Wohnhaus mit Pool am Dach zu mieten // Small gem in an ultra-modern apartm. building with pool on the roof for rent //
VALMACOR Objekt-Nr.: 3358/2029
Dieses und weitere Angebote auf www.VALMACOR.at
In einem nagelneuen 27-stöckigen Hochhaus,
gerade fertiggestellt, im Niedrigenergiestandard der unglaublichen Energieklasse A wird eine ultramoderne Zweizimmerwohnung mit atemberaubendem Weitblick im 6. Stockwerk mit weitegehenden Annehmlichkeiten wie elegante Lobby, Concierge, Socializing-Räume und Bereiche, Outdoorpool am Dach mit rundum Blick über ganz Wien, Sauna, Fitness u.V.m., im Erstbezug auf zunächst 5 Jahren befristeten Miete im Erstbezug angeboten.
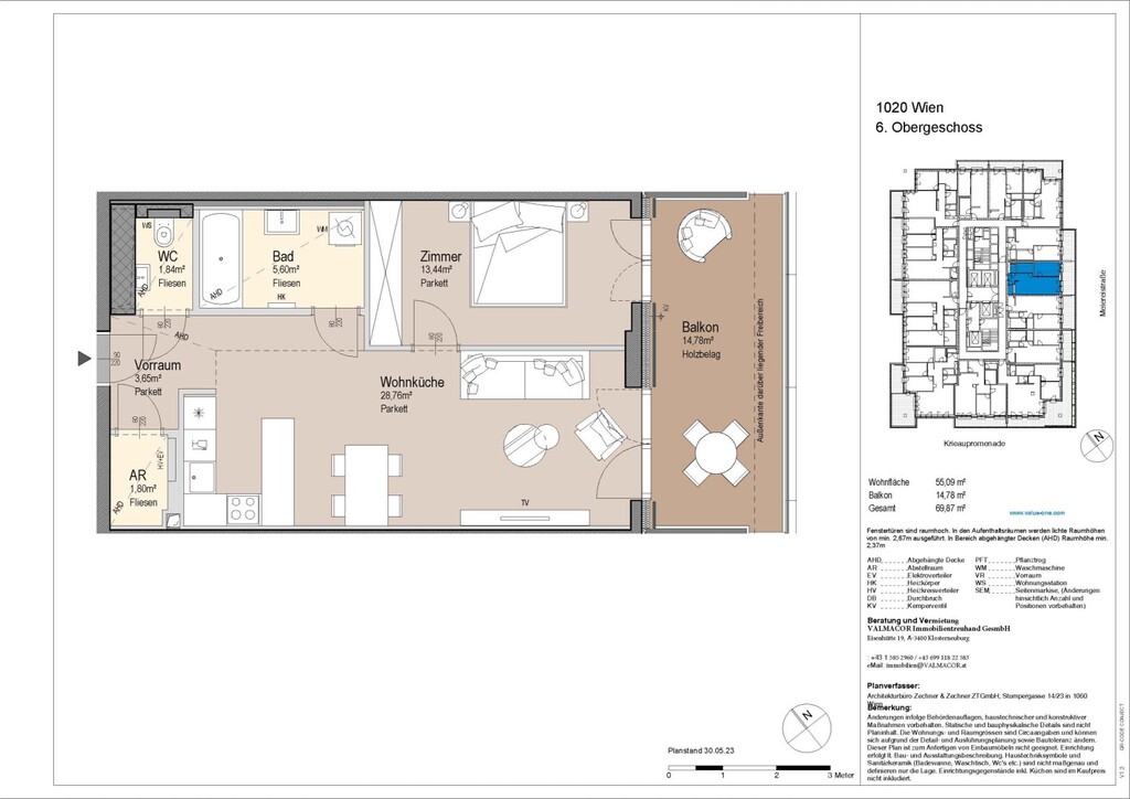
Die City-Wohnung
ist sehr effizient geschnitten. Gleich nach dem Wohnungseingang hat man zur rechten Seite einen Abstellraum, der Vieles wenn nicht sogar alles von der Eingangsgarderobe auffangen kann und zur linken Seite die vom Bad getrennte Toilette mit kleinem Handwaschbecken.
Das Bad selbst
ist mit einer Badewanne, Waschbecken, Handtuchtrockner, Waschmaschinenanschluss und -abfluss, sowie darüber hinaus von der Wohnungseigentümerin mit einem grossen an der Wand angebrachten LED-Spiegel ausgestattet. Weitere Bademöbeln sind bestellt und folgen.
In der Wohn-/Essküche
wird in Kürze eine Küche geliefert und montiert.
Eine 15m² grosse Aussenfläche mit Weitblick
auf die man sowohl vom Wohn- als auch vom Schlafzimmer gelangt ist ein seltener und atemberaubender Hingucker. Der Balkon ist teilweise überdacht, hat Wasser-, Stromanschluss, eine Lichtquelle und nicht zuletzt eine angenehme, terrassenwürdige Breite.
Ausstattungstechnisch
ist die Wohnung auf dem letzten Stand der Bautechnik, u.V.a. mit Fussbodenheizung und -kühlung bzw. Temperierung durch Bauteilaktivierung, individuelle Raumtemperaturregelung, elektrisch steuerbare Beschattungen, dreifach verglaste Terrassentüre und Fenster ausgestattet.
Smart Home
Vorrüstung Alarmanlage
Satellitenanlage
Internet und Telefon
Fenster und -türen mit integrierter Beschattung
Bei der Aussenfläche auf der Terrasse ist ein selbstentleerender Kaltwasseranschluss vorgesehen.
Nicht mitvermietet aber zur Mitbenützung verfügbar
ist ein ungewöhnlich und mittlerweile für moderne Wohnhausanlagen dieser Grösse zeitgemäss grosszügiges Angebot an Gemeinschaftsräume und -anlagen vorhanden:
Untergeschoss 02: Müllraum inkl. Zugang zum Ladehof
Untergeschoss 01: Kinderwagenabstellraum, Fahrradraum
Erdgeschoss: Foyer, Post- und Paketraum mit Brieffachanlagen und Paketboxen
Obergeschoss 01: Kleinkinderspielplatz & Kleinkinderspielraum, Jugendraum
Obergeschoss 03: Urban Gardening
Obergeschoss 27: Sauna mit relax Bereich (mit Buchung) , Garderobe, WC- und Duschanlagen, Fitnessraum, Dining room (mit Buchung) , Pool mit umliegender Terrasse
Ausserhalb des Gebäudes und nicht am Grundstück: Jugendspielplatz
Foyer
Briefkastenanlage und Paketboxen
Kinderwagenabstellraum
Fahrradraum
Kleinkinderspielplatz & -raum
Jugendspielplatz
Jugendraum
WC- und Duschanlagen, Garderobe
Sauna und relax Bereich
Erste Hilfe Raum (Abstellraum)
Fitnessraum
Dining Room
Pool und Terrasse
Concierge
Sicherheitseinrichtungen, Brandschutz
Die Lage
des Wohnhauses, oft ausschlaggebend für die Wahl eines Domizils, erstreckt sich am Prater, Ernst Happel Stadion und der U-Bahnstation Stadion, in der Nähe der WU Wien, wo praktisch ein neuer und moderner Stadtteil sprichwörtlich aus dem Boden entstanden ist.
Alle Annehmlichkeiten zum täglichen Leben, darunter BILLA Plus, BIPA, Bank, Post, Apotheke, Hotels und viel Gastronomie liegen in Gehdistanz
Für die genaue Adresse und um bessere Einsicht in den Wohnungsplan zu nehmen fordern Sie Ihr persönliches Expose an.
Entspricht das Objekt nicht Ihren Vorstellungen? Weitere Angebote finden Sie auf
www.VALMACOR.at
Wir behandeln Sie besser!
Valmacor Object Nr.: 3358/2029
This and other offers can be found on www.VALMACOR.at.
In a brand-new 27-story high-rise, just completed and built to the low-energy standard of the incredible Energy Class A, an ultra-modern two-room apartment on the 6th floor is being offered for first-time occupancy on an initially limited 5-year rental contract. The apartment features breathtaking panoramic views and extensive amenities such as an elegant lobby, concierge service, socializing areas, rooftop outdoor pool with 360° views of Vienna, sauna, fitness facilities, and much more.
The City Apartment
The layout is highly efficient. Immediately upon entering the apartment, there is a storage room on the right side—perfect for coats and much more—and a separate toilet with a small washbasin on the left side.
The Bathroom
Equipped with a bathtub, washbasin, heated towel rack, washing machine connection and drain, as well as a large wall-mounted LED mirror provided by the owner. Additional bathroom furniture has been ordered and will follow shortly.
The Living/Dining Kitchen
A brand-new kitchen will be delivered and installed shortly.
A 15 m² Outdoor Space with Panoramic Views
Accessible from both the living room and the bedroom, this balcony is a rare and stunning highlight. It is partially covered and features water and electricity connections, a light fixture, and a comfortable, terrace-worthy width.
Technical Features
The apartment meets the latest construction standards, including underfloor heating and cooling via concrete core activation, individual room temperature control, electrically operated shading, and triple-glazed terrace doors and windows.
Smart Home
Additional Installations
* Pre-wiring for alarm system
* Satellite system
* Internet and telephone connections
* Windows and doors with integrated shading
* Self-draining cold-water connection on the balcony
Shared Facilities (not part of the lease but available for use)
This modern residential complex offers an unusually generous selection of communal spaces and amenities:
* Basement level - 2: Waste disposal area with access to loading dock
* Basement level - 1: Stroller room, bicycle storage
* Ground floor: Foyer, mail and parcel room with letterboxes and package lockers
* 1st floor: Playground and playroom for toddlers, youth room
* 3rd floor: Urban gardening area
* 27th floor: Sauna with relaxation area (booking required) , changing rooms, WC and shower facilities, fitness room, dining room (booking required) , pool with surrounding terrace
* Outdoor (off-site) : Youth playground
Additional amenities include:
* Concierge service
* Safety systems and fire protection
Location
The high-rise is situated near the Prater, Ernst Happel Stadium, the Stadion U-Bahn station, close to Vienna University of Economics and Business (WU Wien) , in a newly developed, modern urban district.
Everyday amenities such as **BILLA Plus, BIPA, banks, post office, pharmacy, hotels, and numerous restaurants** are within walking distance.
For the exact address and a pdf-floor plan, please request your personal exposé by providing your contact details.
Doesn’t this object correspond to your requirements? You may find further offers on
www.VALMACOR.at
We treat you better!
| Angaben gemäss gesetzlichem Erfordernis: | |||
| Miete | € | 1307 | zzgl 10% USt. |
| Betriebskosten | € | 219,26 | zzgl 10% USt. |
| Warmwasser | € | 38,56 | zzgl 10% USt. |
| Umsatzsteuer | € | 156,49 | |
| ------------------------------------------------------------------ | |||
| Gesamtbetrag | € | 1721,31 | |
| ------------------------------------------------------------------ | |||
| Heizwärmebedarf: | 18.9 kWh/(m²a) | ||
| Klasse Heizwärmebedarf: | A | ||
| Faktor Gesamtenergieeffizienz: | 0.72 | ||
| Klasse Faktor Gesamtenergieeffizienz: | A | ||
| Object # 2029 | |
|---|---|
| Number of rooms | 2 |
| Living area | 55.09 m² |
| Rent excluding bills | € 1.721,31 |
| Extra charges | € 283,61 |
| Security deposit | € 5.163,93 |
| Can be used starting at | 01.10.2025 *) |
| House type | Wohnung |
| Floor | 6 |
| Number of floors | 1 |
| Number of bedrooms | 1 |
| Number of bathrooms | 1 |
| Type of heating | central heating |
| Year of construction | 2025 |
| Condition | first occupancy |
| Balcony/patio | yes |
| Elevator | yes |
| Barrier-free | yes |
| Energy performance certificate type | requirement |
| Heat energy requirement value | 18.9 |
| Heat energy requirement class | A |
| Total energy efficiency value | 0.72 |
| Total energy efficiency class | A |
Address
Wien
Österreich
Rent excluding bills
€ 1.721,31




































