Ein kleines Stück Himmel auf Erden, Einfamilienhaus mit traumhaft schönem Garten // A little piece of heaven on Earth, detached house with beautif //
Valmacor Objekt Nr.: 3358/1942
Dieses und weitere Angebote auf www.VALMACOR.at
Ein alleinstehendes, 1996 von der Firma HANLO erbautes Einfamilienhaus mit einer Nutzfläche von knapp 290 m² wird in einer ruhigen und stadtnahen Villenlage, im Erholungsgebiet des 22. Bezirks in der Nähe der oberen alten Donau zum Kauf angeboten.
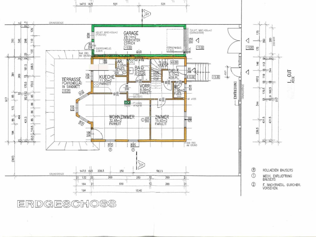
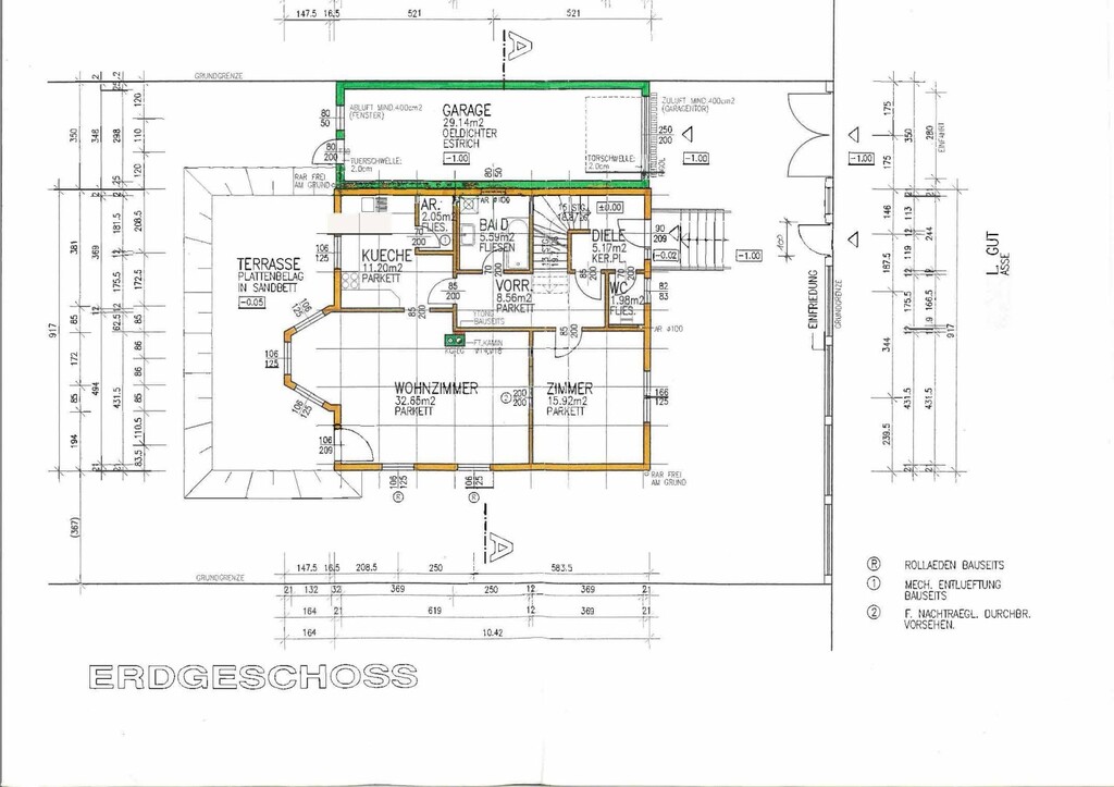
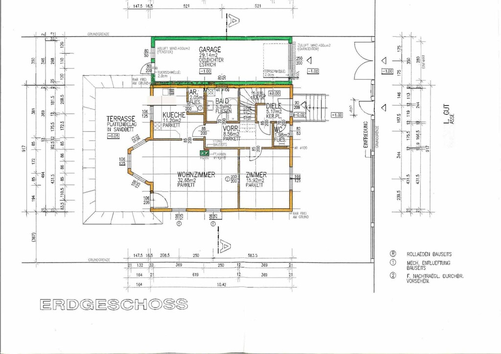
Das Haus erstreckt sich über einen
83,12 m² grossen Erdgeschoss/Hochparterre mit einer gut 27 m² Gartenterrasse,
wo sich ein Wohnzimmer mit einem Essbereich und Ausgang in den Garten, zunächst auf eine Terrasse, eine Küche mit angeschlossenem Speis, ein Badezimmer mit Badewanne, ein Schlafzimmer, der Vorraum und eine Gäste-Toilette mit einem kleinen Handwaschbecken befinden.
Dem Erdgeschoss angebaut ist eine
35,98 m² grosse Garage,
mit einem Rolltor, die vom Vorgarten in den Garten durchgeht, und die Platz für mindestens ein Auto, wenn nicht sogar zwei hat. Im Vorgarten kann ein weiteres Auto parken.
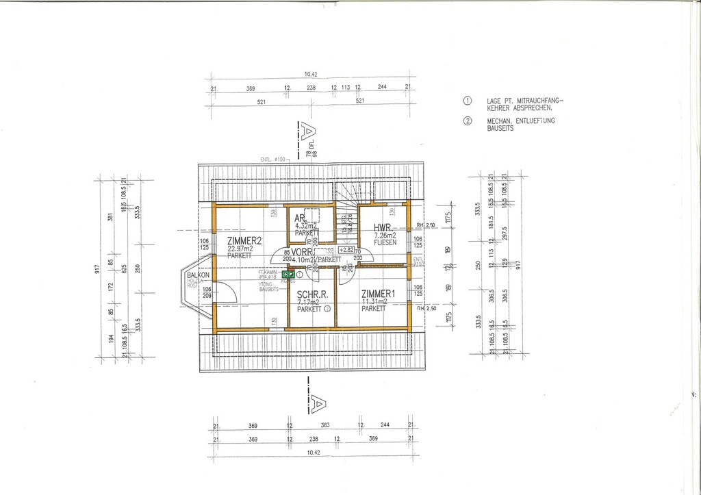
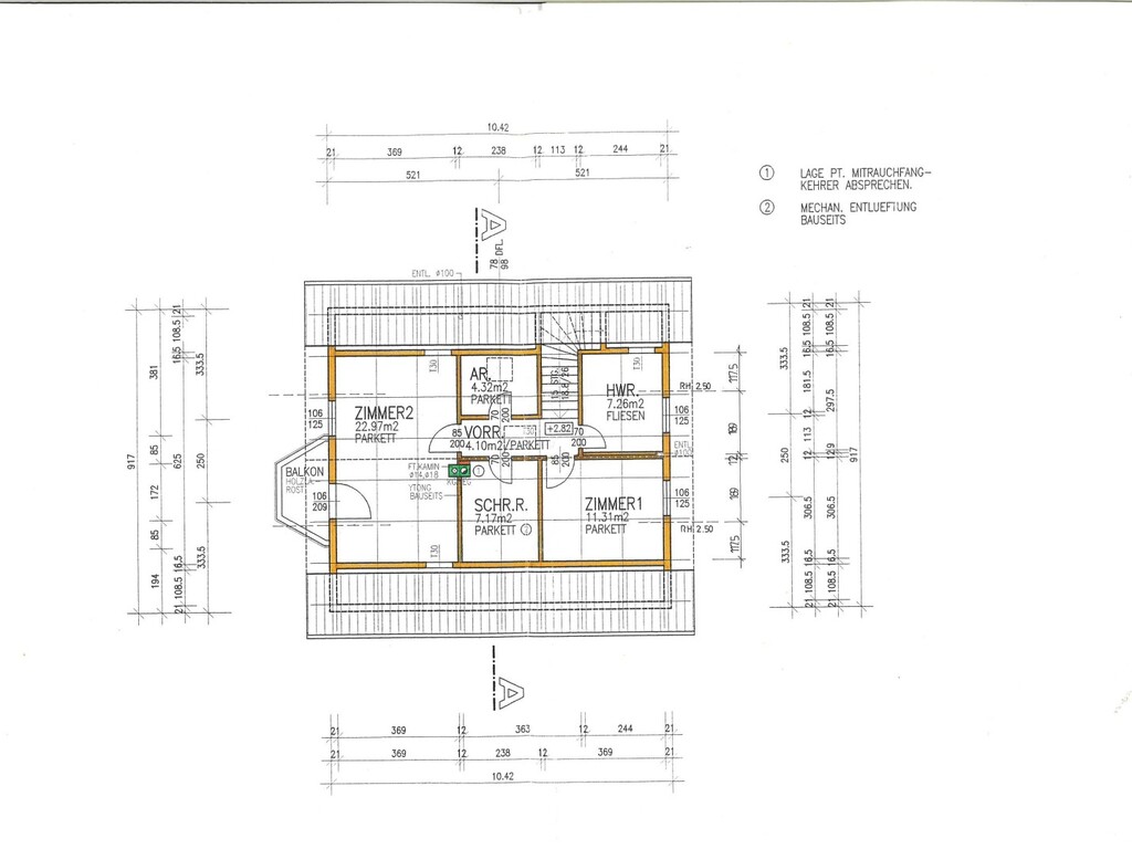
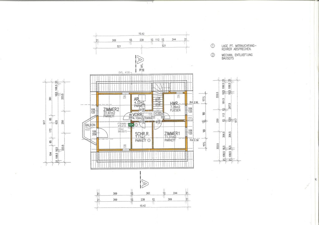
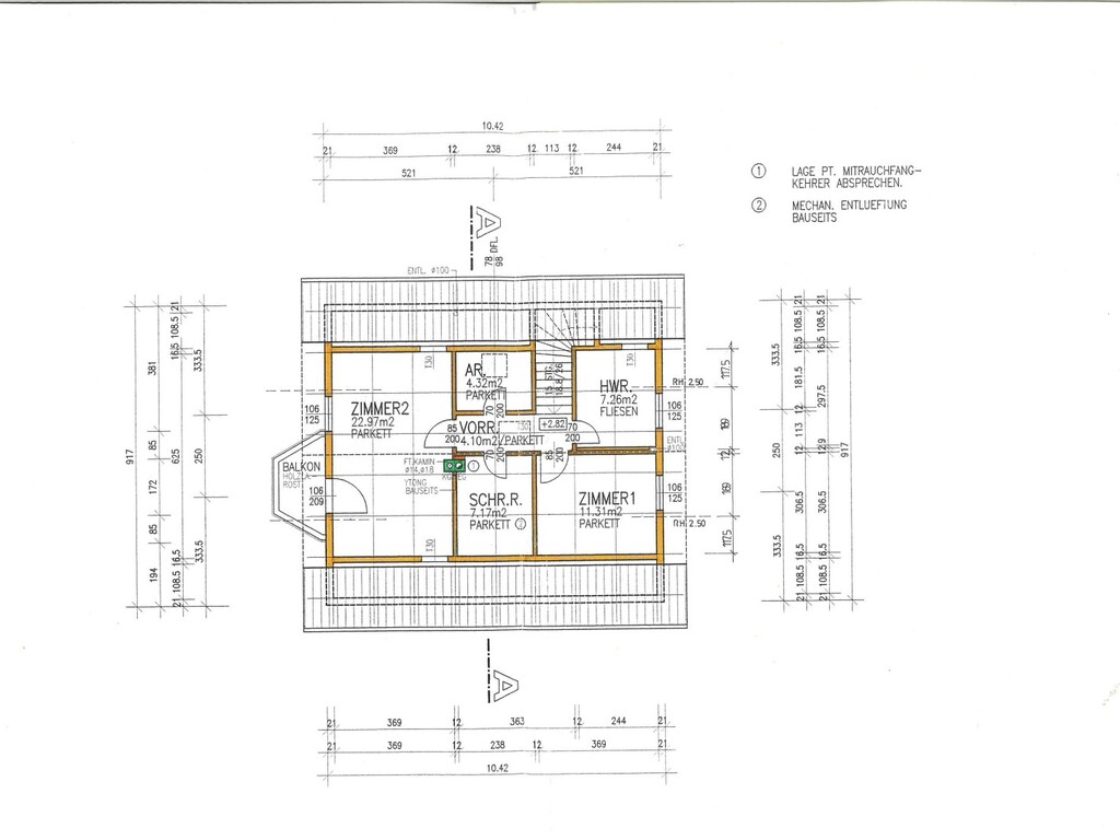
Über eine Holztreppe kommt man aus dem Vorraum ins
57,13 m² grosse Ober- bzw. Dachgeschoss,
wo sich zwei weitere Schlafzimmer, eines davon, das Masterbed mit einem kleinen aber romantischen Holzbalkon in den wunderschön begrünten Eigengarten, ein Büro, wo einst eine kleine Küche war (die Anschlüsse sind noch vorhanden, im Keller sogar die alten Küchenmöbel abgestellt) , eine mit Massschränke ausgestattete begehbare Garderobe und ein Badezimmer mit Toilette befinden.
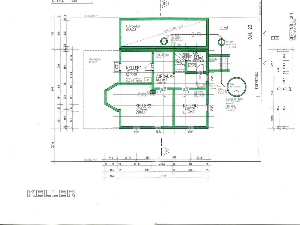
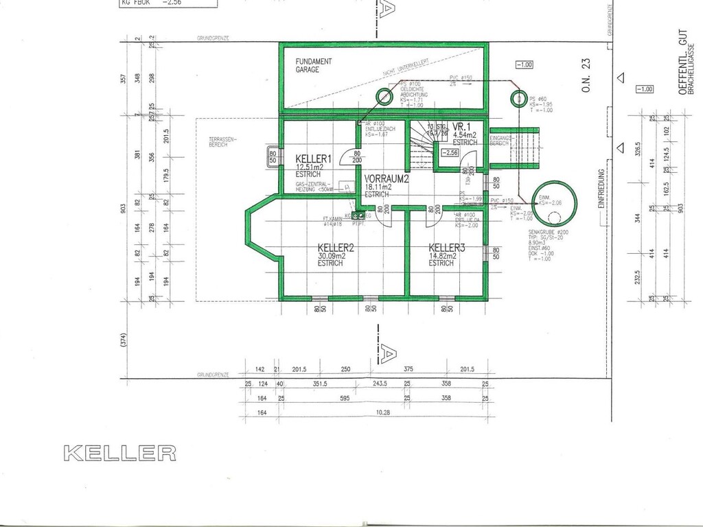
Eine weitere Treppe verbindet das Erdgeschoss mit dem
83,12 m² Wohnkeller,
wo die Waschküche angesiedelt ist, ein Verteilerflur, wo sich die Gaszentralheizung befindet, ein Schlafzimmer und ein Hobbyraum, der in etwa so gross ist wie das Wohnzimmer im Erdgeschoss und wo auch der Warmwasserspeicher steht.
Das Einfamilienhaus steht auf einem mehr als grosszügigen
856 m² grossen Pachtgrund und hat einen entsprechend grossen, wie auf den Bildern zu sehen, traumhaft schönen Garten, mit viel Grünem und vor allem mit einem herzgewinnenden Teich in dessen Mitte.
Im Garten sind Schläuche zur Bewässerung verlegt. Aus einem Brunnen kann Wasser zur Bewässerung des Gartens entnommen werden.
Der 2014 mit dem Stift Klosterneuburg abgeschlossene Bestandsvertrag ist zwar auf unbestimmte Zeit abgeschlossen, der Bestandsgeber hat sich jedoch nur über eine Laufzeit von 56 Jahren zu einen Kündigungsverzicht verpflichtet. Im Falle eines Eigentümerwechsels, ist der Bestandsgeber zu einem Abschuss eines neuerlichen Bestandsvertrages auf unbestimmte Zeit mit dem künftigen Eigentümer des Edifikats bereit.
Die jetzige Hauseigentümerin bewohnt glücklich mit Ihrer 5-köpfigen Familie seit 07.10.2013 dieses Edifikat.
Die Lage des Hauses verwöhnt:
3 Gehminuten zum Ufer der oberen alten Donau
5 Gehminuten zum BILLA
8 Gehminuten zur U1 Kagran/Donauzentrum
10 Gehminuten zur Vienna International School
Wie auch den Bildern zu entnehmen ist, wird das Haus derzeit bewohnt. Die Eigentümerin hat angegeben, ihr Haus innerhalb von 2 Monaten ab Treuhanderlag geräumt von seinen Fahrnissen übergeben zu können.
Hat diese Immobilie Ihr Interesse geweckt?
Dann fragen Sie unverbindlich an, Hr. DI Corneliu TANASESCU steht Ihnen unter +43 699 118 22 583 gerne beratend persönlich zur Verfügung.
Entspricht das Objekt nicht Ihren Vorstellungen? Weitere Angebote finden Sie auf
www.VALMACOR.at
Wir behandeln Sie besser!
____________________________________
Valmacor Object Nr.: 3358/1942
This and more offers on www.VALMACOR.at
A detached single-family house built by HANLO in 1996 with a total usage space of just under 290 m² is for sale in a quiet villa location close to the city center, in the recreational area of the 22nd district near the upper Old Danube.
The house extends over a
83.12 m² ground floor/raised first floor,
where a living room with a dining area, a kitchen with adjoining kitchen storage, a bathroom with bathtub, a bedroom, an anteroom and a guest toilet with a small hand basin are available.
Attached to the ground floor is a
35.98 m² garage,
with a roller door that leads from the front garden into the garden and has space for at least one car, if not two. In the front garden in front of the entrance to the garage there is space for a third car (if necessary) .
A wooden staircase leads from the entrance hall to the
57.13 m² upper floor or attic,
where there are two further bedrooms, one of which is the master bedroom with a small but romantic wooden balcony overlooking the beautifully landscaped private garden, an office where there was once a small kitchen (the connections are still there, even the old kitchen furniture is stored in the cellar) , a wardrobe equipped with custom-made cupboards and a bathroom with toilet.
A further staircase connects the ground floor with the
83.12 m² living cellar,
where the laundry room, a distribution hall, where the gas central heating is located, a bedroom and a hobby room, which is about the same size as the living room on the ground floor and where the hot water tank is placed.
The detached house stands on a more than generous
856 m² building rights plot
and has a correspondingly large, as can be seen in the pictures, fantastically beautiful garden, with lots of greenery and above all with a heart-winning pond in its center.
Irrigation hoses are laid in the garden. Water can be drawn from a well to irrigate the garden.
Although the lease with Klosterneuburg Abbey in 2014 is concluded for an indefinite period, the landlord has only undertaken to waive termination for a term of 56 years. In the event of a change of ownership, the owner is prepared to conclude a new lease for an indefinite period with the future owner of the edifice.
The current homeowner has been happily living in this Edifice with her family of 5 since 07.10.2013.
The location of the house is spoiling:
3 minutes´ walk to the banks of the upper old Danube
3 minutes´ walk to the U1 Kagran/Donauzentrum underground station
5 minutes´ walk to BILLA
10 minutes´ walk to the Vienna International School
As can be seen from the pictures, the house is currently occupied. The owner will be able to hand over the house within 2 months from the date the agreed upon purchase price has been credited.
Has this property retained your interest?
If so please request your personal unbinding offer or call us in advance, Mr. Corneliu TANASESCU will remain personally available at +43 699 118 22 583 for any question or advisory consultancy that you may need.
Doesn’t this object correspond to your requirements? You may find further offers on
www.VALMACOR.at
We treat you better!
| Angaben gemäss gesetzlichem Erfordernis: | |||
| Heizwärmebedarf: | 70.1 kWh/(m²a) | ||
| Klasse Heizwärmebedarf: | C | ||
| Objekt Nr. 1942 | |
|---|---|
| Zimmeranzahl | 4 |
| Wohnfläche ca. | 140,25 m² |
| Grundstücksfläche ca. | 856 m² |
| Betriebskosten | € 1.008,82 |
| Provision/Courtage | 3% zzgl. USt. |
| Frei ab | n.V. |
| Kaufpreis | € 635.900,00 |
| Immobilientyp: | Haus |
| Anzahl Etagen | 2 |
| Anzahl Schlafzimmer | 3 |
| Anzahl Badezimmer | 2 |
| Heizungsart | Zentralheizung |
| Stellplatzart | Garage, Freiplatz |
| Baujahr | 1997 |
| Balkon/Terrasse | ja |
| Garten/-mitbenutzung | ja |
| Nutzfläche ca. | 286,86 m² |
| Anzahl Stellplätze | 3 |
| Energieausweisart | Bedarf |
| Heizwärmebedarf-Wert | 70.1 |
| Heizwärmebedarf-Klasse | C |
Adresse
Wien 22., Donaustadt
Österreich
Kaufpreis
€ 635.900,00

















































