3 Zimmer und 2 Terrassen, Gemütlichkeit provisionsfrei f. Mieter/Käufer // 3 rooms und 2 terraces, comfort Tenant/Buyer commission free //
Valmacor Objekt Nr.: 3358/1973
Weitere Angebote auf www.VALMACOR.at
Nur wenige Minuten von U2- Aspern entfernt, neben Benjowsky Park wurde ein neues hochwertiges Niedrigstenergie-Hausanlage mit Urlaubsflair errichtet. Nicht nur die Infrastruktur ist einmalig, denn die Lage verbindet Entspannung mit City Nähe durch fantastische Verkehrsanbindung sowie exzellente Bildungseinrichtungen, Einkaufs- und Erholungsmöglichkeiten.
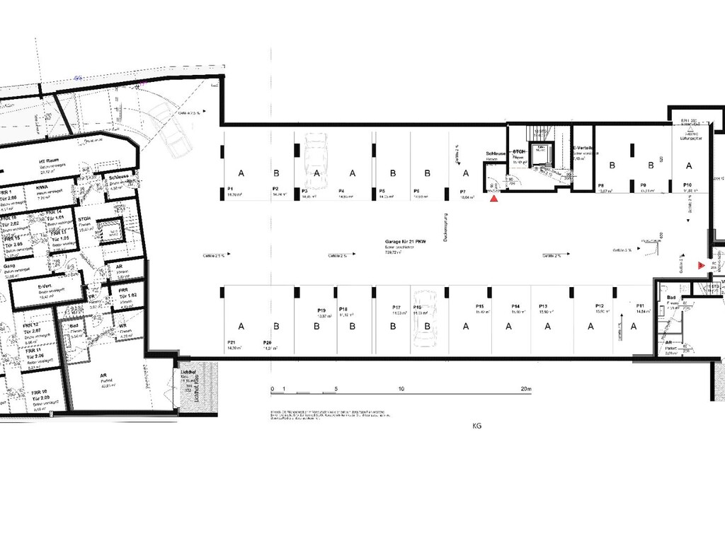
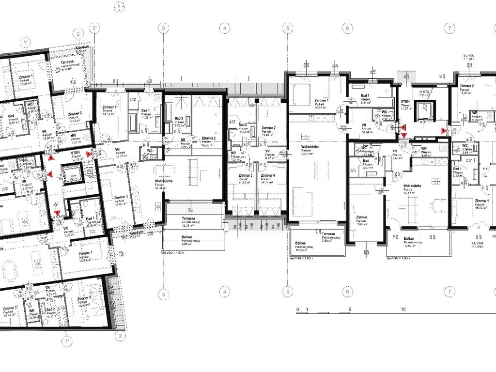
Die Wohnanlage ist exklusiv und bietet Platz für 18 Wohneinheiten, ist voll unterkellert und hochwertig ausgestattet. Eine hellbeleuchtete Tiefgarage sorgt für bequemes und sicheres nach Hause kommen. Ein eigener Kellerabteil sowie versperrbare Fahrrad- und Kinderwagenabstellräume und Liftzugänge sorgen für einfache und geschützte Aufbewahrung und Handhabung
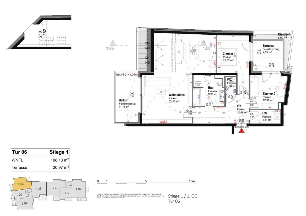
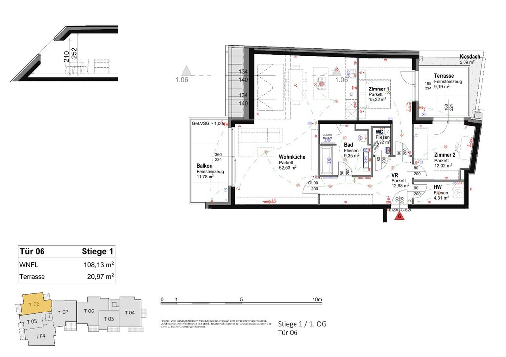
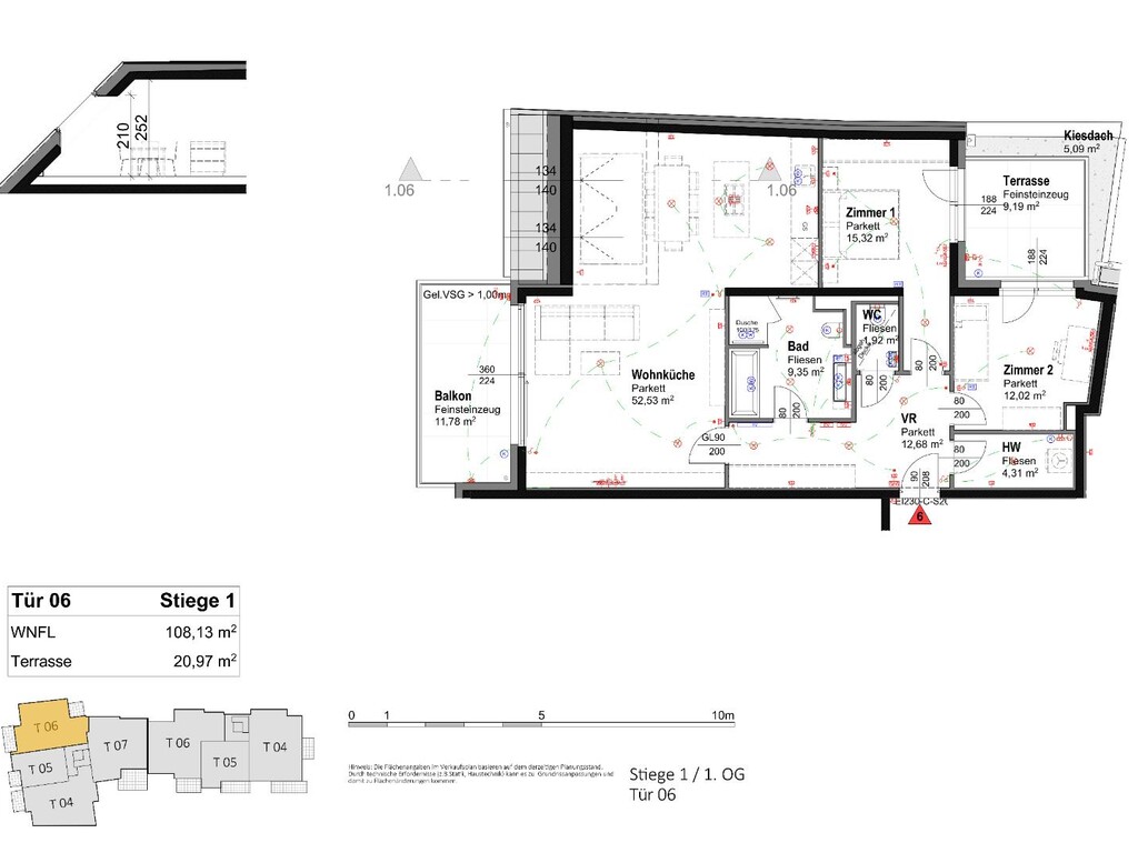
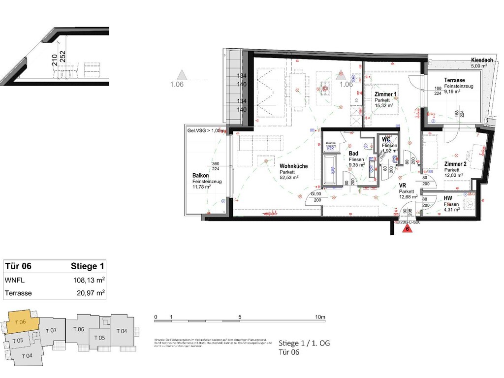
Die Top 106 ist eine 108 m², 3 Zimmerwohnung mit Terrasse und befindet sich im 1 OG des Hauses. Zur Verfügung stehen, ein wirklich grosses Wohnzimmer mit offener Küche und Ausgang auf einer Ost-seitige Terrasse, 2 Schlafzimmer, die sich eine weitere Terrasse teilen, 1 Bad mit Badewanne, Dusche und Toilette, eine separate Toilette und ein Wirtschaftsraum.
Die Ausstattung ist hochwertig, modern und auf Komfort und Energieeffizienz bedacht. Die Wohnung verfügt über eine Sicherheitseingangstür, Fussbodenheizung und Deckenkühlung mit Wärmepumpe, Photovoltaikanlage am Dach, dreifach verglaste Fenster sowie elektrisch steuerbare Raffstores und ausreichend Steckdosen, Internet- und Datenanschlüsse.
Die Wohnung kann um EUR 2.590 monatlich inkl. BK und 10% Ust. zur befristeten Miete angeboten, die Option zum Kauf unter Anrechnung eines Drittels der bezahlten Nettomiete ist gegeben.
Alles ist für den Mieter oder Käufer provisionsfrei!
Parkplätze stehen in der hauseigenen Tiefgarage gegen Aufpreis zur Verfügung.
Für den Mieter/Käufer provisionsfrei!
Hat diese Immobilie Ihr Interesse geweckt?
Dann fragen Sie unverbindlich an, Hr. DI Corneliu TANASESCU steht Ihnen unter +43 699 118 22 583 gerne beratend persönlich zur Verfügung.
Entspricht das Objekt nicht Ihren Vorstellungen? Weitere Angebote finden Sie auf
www.VALMACOR.at
Wir behandeln Sie besser!
__________________________________
Valmacor Object Nr.: 3358/1973
More offers on www.VALMACOR.at
The apartment is placed only a few minutes away from the U2- Aspern, near Benjowsky Park, in a new high-quality low energy-house with holiday flair. Not only the infrastructure is unique, but the location combines relaxation with city proximity through fantastic transport links as well as through excellent educational, shopping and recreation facilities.
This exklusive residence offers space for 18 units has a full basement and premium fittings. A brightly lighted, parking garage offers a both comfortable and safe return home. A private basement storage and lockable bicycle, stroller storerooms and lift access provide simple and protected storage and handling.
The Top 106 is a 108 m², 3 room apartment with terrace and is located on the 1st floor of the house and is offered for a limited period of time for rent - if desired - with an option to purchase (with one third accountable monthly net rent) .
The interior fittings are of high-quality, modern and designed for comfort and energy efficiency. The apartment has a security entrance door, underfloor heating and ceiling cooling via heat pump, photovoltaic plant on the rooftop of the house, triple glazed windows and electric remotable blinders. Fitting changes are still possible pending construction progress.
The apartment can be rented for EUR 2.590 per month incl. utilities and 10% VAT, the option to buy the property under one third accountability of the paid net rent exists at the sole choice of the tenant.
Of course COMMISSION FREE for the Tenant/buyer!
Has this property retained your interest?
If so please request your personal unbinding offer, Mr. Corneliu TANASESCU will remain personally at +43 699 118 22 583 available for any question or advisory consultancy that you may need.
Doesn’t this object correspond to your requirements? You may find further offers on
www.VALMACOR.at
We treat you better!
| Angaben gemäss gesetzlichem Erfordernis: | |||
| Miete | € | 2199,1 | zzgl 10% USt. |
| Betriebskosten | € | 155,45 | zzgl 10% USt. |
| Umsatzsteuer | € | 235,45 | |
| ------------------------------------------------------------------ | |||
| Gesamtbetrag | € | 2590 | |
| ------------------------------------------------------------------ | |||
| Heizwärmebedarf: | 33.0 kWh/(m²a) | ||
| Faktor Gesamtenergieeffizienz: | 0.71 | ||
| Objekt Nr. 1973 | |
|---|---|
| Zimmeranzahl | 3 |
| Wohnfläche ca. | 108 m² |
| Miete | € 2.590,00 |
| Betriebskosten | € 170,99 |
| Kaution | € 15.540,00 |
| Frei ab | sofort |
| Immobilientyp: | Wohnung |
| Etage | 1 |
| Anzahl Etagen | 1 |
| Anzahl Schlafzimmer | 2 |
| Anzahl Badezimmer | 1 |
| Heizungsart | Fußbodenheizung |
| Baujahr | 2023 |
| Zustand | Erstbezug |
| Balkon/Terrasse | ja |
| Personenaufzug | ja |
| Barrierefrei | ja |
| Energieausweisart | Bedarf |
| Heizwärmebedarf-Wert | 33 |
| Gesamtenergieeffizienz-Wert | 0.71 |
Adresse
Wien 22., Donaustadt
Österreich
Miete
€ 2.590,00


























