Gartenwohnung der Superlative im Erholungsgebiet oberes Mühlwasser // Superlative garden apartment in the Upper Mühlwasser recreation area //
Valmacor Objekt Nr.: 3358/2011
Weitere Angebote auf www.VALMACOR.at
Im grünsten Bezirk Wiens wurden in einer Wohnhausanlage auf Eigengrund 8 erstklassige Eigentumswohnungen errichtet. Ihr schlüsselfertiges Zuhause wird Sie mit exklusivster Markenausstattung und Wohnflächen von 56-115 m² beeindrucken, die sich auf 2-4 Zimmer aufteilen.
Diese moderne Gartenwohnung
mit allen mittlerweile selbstverständlichen Ausstattungsannehmlichkeiten wie Fussbodenheizung, Deckenkühlung, 3-fach verglaste Holz-Alu Fenster, elektrisch steuerbare Rafstores u.V.m., wird - bereits schlüssel-/bezugsfertig wie abgebildet - in einem Anfang 2024 fertiggestellten Wohnaus zum Kauf angeboten.
Alle technische Neugierden können auf Anfrage bei weitrgehendem Interesse einem persönlichen Angebot und einer ausführlichen Bau- und Ausstattungsbeschreibung sowie einem indeividuellen Schlussbesprechungsprotokoll entnommen oder in einem persönlichen Gespräch bei der Besichtigung dieser Wohnung erhalten werden.
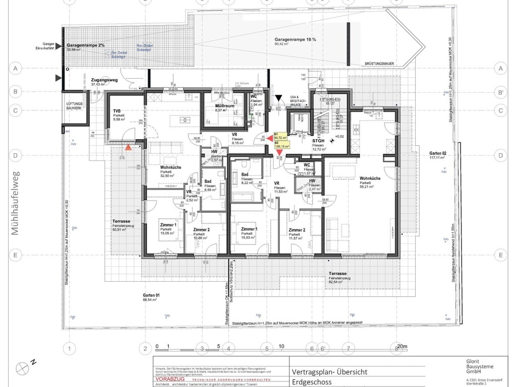
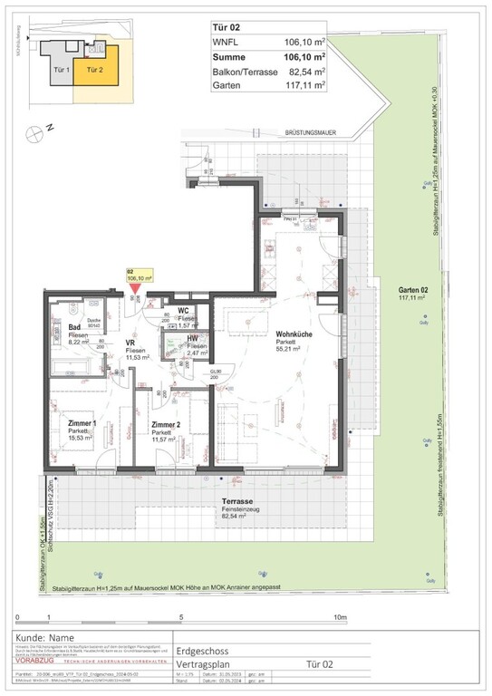
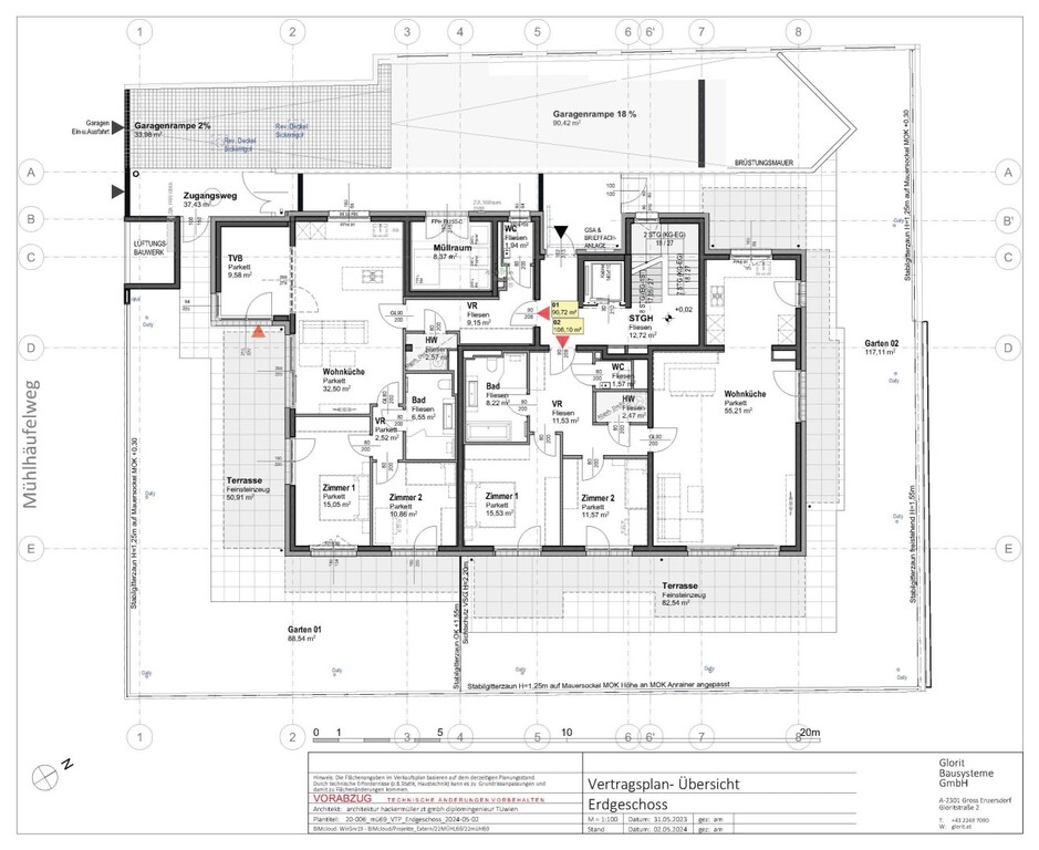
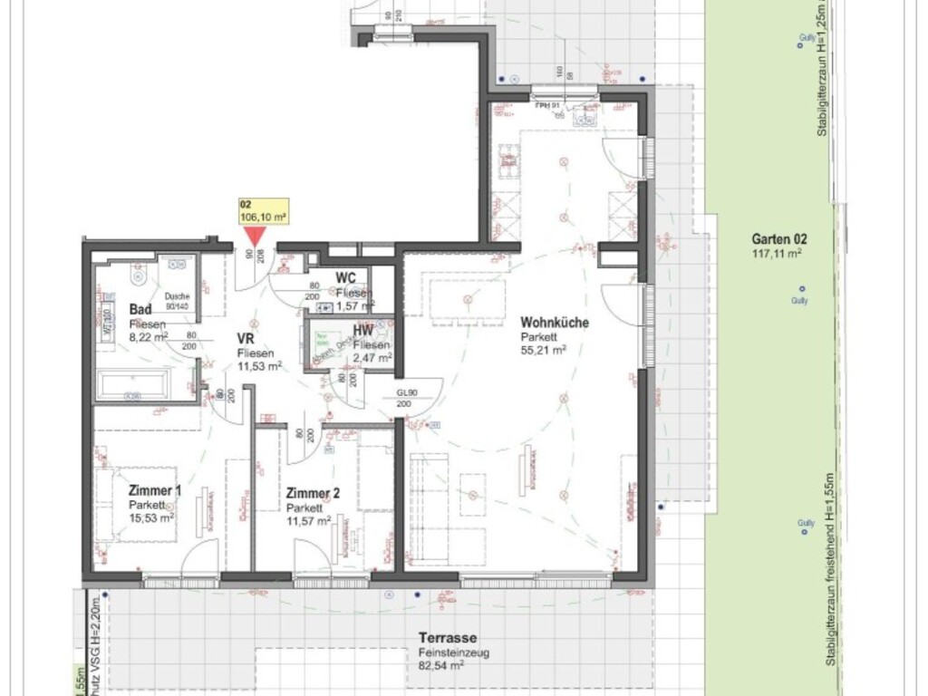
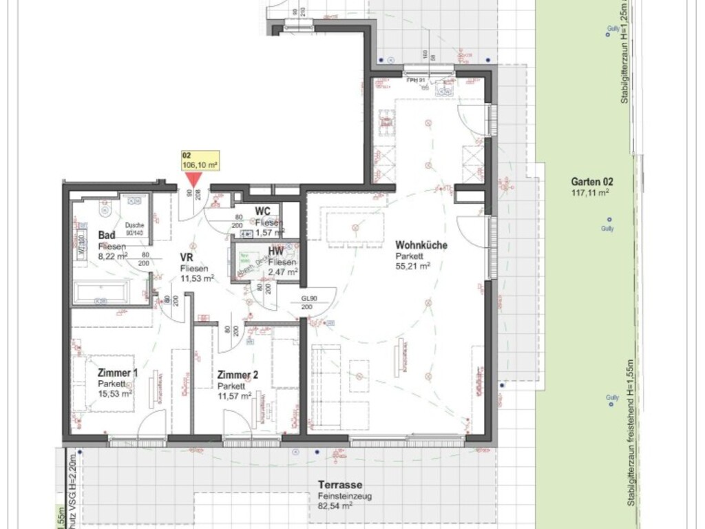
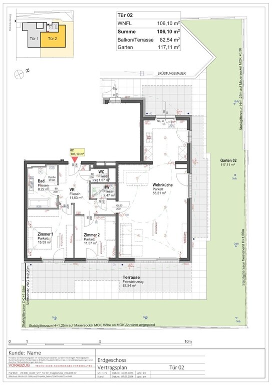
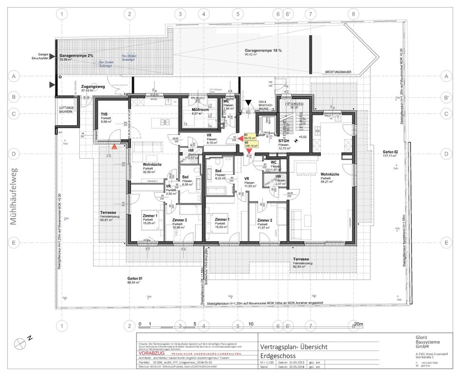
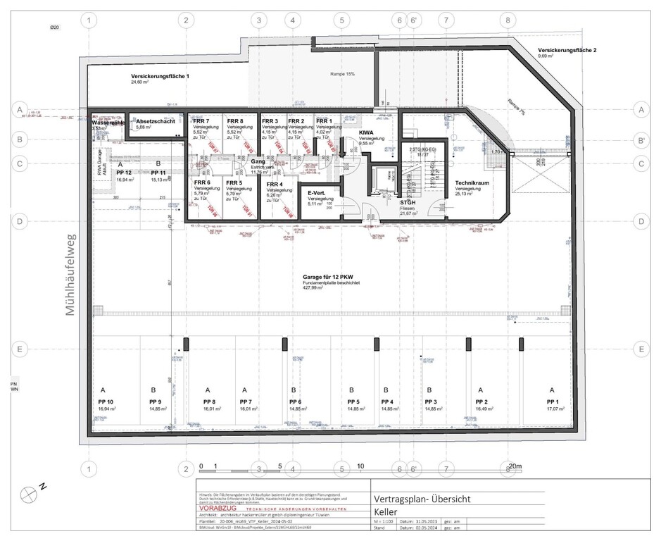
Was bleibt sind gediegene 3 Zimmer, davon zwei Schlafzimmer, alle getrennt begehbar auf stattiliche 106 m² Wohnfläche mit zusätzlichen 82 m² Terrassen und weiteren 114 m² Gartenfläche zur ausschliesslichen Nutzung.
Ein Heiz- und Kühlsystem mit Wärmepumpe, die bereits erwähnte Deckenkühlung und darüber hinaus eine Photovoltaik-Anlage am Dach zur umweltfreundlichen Herstellung von Strom sind weitere technische HIghlights.
Moderne Architektur trifft hier auf eine bis ins letzte Detail durchdachte Raumaufteilung: Grundrisse, die nicht nur am Plan, sondern auch im echten Leben überzeugen und einem fortschrittlichen Raumkonzept gerecht werden. Bei diesem Projekt ist wirklich für jeden Geschmack und alle Bedürfnisse etwas dabei.
Was alle Wohnungen vereint: viel Licht, viel Luft, viel Raum, sowie grosszügige Terrassen bzw. Eigengärten im Erdgeschoss. Hier entspannen Sie, hier atmen Sie auf und tanken Energie.
Wir wollen nicht zu viel, und auch nicht zu wenig über diese moderne Gartenwohnung der Superlative verraten. Sollten Sie auf Grund der Blider und er hier angeführten Details interessiert sein, fordern Sie doch bitte unter Angabe Ihrer Anfragedaten ein persönliches Angebot an.
Vielleicht gar nicht so unwichtig, der Kauf dieser Gartenwohnung der Superlative wäre für Sie als Käufer/in provisionsfrei!
Für den Käufer provisionsfrei!
Hat diese Immobilie Ihr Interesse geweckt?
Dann fragen Sie unverbindlich an, Hr. DI Corneliu TANASESCU steht Ihnen unter +43 699 118 22 583 gerne beratend persönlich zur Verfügung.
Entspricht das Objekt nicht Ihren Vorstellungen? Weitere Angebote finden Sie auf
www.VALMACOR.at
Wir behandeln Sie besser!
Valmacor Object Nr.: 3358/2011
More offers on www.VALMACOR.at
In Vienna´s greenest district, 8 first-class condominiums have been built in a residential complex on private land. Your turnkey home will impress you with the most exclusive brand fittings and living space of 56-115 m², divided into 2-4 rooms.
This modern garden apartment
with all the now self-evident amenities such as underfloor heating, ceiling cooling, triple-glazed wood-aluminum windows, electrically controllable Rafstores and much more, is offered for sale - already ready for occupancy as shown - in a residential building completed in early 2024.
All technical curiosities can be taken from a personal offer and a detailed description of the construction and equipment as well as an individual final meeting protocol on request or in a personal conversation when viewing this apartment.
What remains are dignified 3 rooms, including two bedrooms, all separately accessible on a stately 106 m² living space with additional 82 m² terraces and a further 114 m² garden area for exclusive use.
Further technical highlights include a heating and cooling system with heat pump, the aforementioned ceiling cooling system and a photovoltaic system on the roof for the environmentally friendly production of electricity.
Here, modern architecture meets a room layout that has been thought through down to the last detail: floor plans that are not only convincing on the plan, but also in real life and do justice to a progressive room concept. There really is something for every taste and every need in this project.
What all the apartments have in common: lots of light, lots of air, lots of space and spacious terraces or private gardens on the first floor. Here you can relax, breathe in and recharge your batteries.
We don´t want to reveal too much or too little about this superlative modern garden apartment. If you are interested on the basis of the pictures and the details listed here, please request a personal offer, stating your inquiry details.
Perhaps not so unimportant, the purchase of this superlative garden apartment would be commission-free for you as the buyer!
Has this property retained your interest?
If so please request your personal unbinding offer, Mr. Corneliu TANASESCU will remain personally at +43 699 118 22 583 available for any question or advisory consultancy that you may need.
Doesn’t this object correspond to your requirements? You may find further offers on
www.VALMACOR.at
We treat you better!
| Angaben gemäss gesetzlichem Erfordernis: | |||
| Heizwärmebedarf: | 27.9 kWh/(m²a) | ||
| Klasse Heizwärmebedarf: | B | ||
| Faktor Gesamtenergieeffizienz: | 0.68 | ||
| Klasse Faktor Gesamtenergieeffizienz: | A+ | ||
| Objekt Nr. 2011 | |
|---|---|
| Zimmeranzahl | 3 |
| Wohnfläche ca. | 106,09 m² |
| Betriebskosten | € 297,41 |
| Frei ab | sofort |
| Kaufpreis | € 749.900,00 |
| Immobilientyp: | Wohnung |
| Anzahl Etagen | 1 |
| Anzahl Schlafzimmer | 2 |
| Anzahl Badezimmer | 1 |
| Heizungsart | Fußbodenheizung |
| Baujahr | 2025 |
| Zustand | Erstbezug |
| Balkon/Terrasse | ja |
| Garten/-mitbenutzung | ja |
| Personenaufzug | ja |
| Barrierefrei | ja |
| Energieausweisart | Bedarf |
| Heizwärmebedarf-Wert | 27.9 |
| Heizwärmebedarf-Klasse | B |
| Gesamtenergieeffizienz-Wert | 0.68 |
| Gesamtenergieeffizienz-Klasse | A+ |
Adresse
Wien 22., Donaustadt
Österreich
Kaufpreis
€ 749.900,00






























