Ansprechendes Atelier, Loft, Dachterrasse inkl. PP im Neunzehnten // Attractive Studio, loft, roof terrace incl. parking in the nineteenth //
Valmacor Objekt Nr.: 3358/2021
Dieses und weitere Angebote auf www.VALMACOR.at
Eine nicht alltägliche Dachgeschossmaisonette mit Atriumhof & Dachterrassen wird im Neustift am Walde in der Nähe der American International School zum Kauf angeboten. Die Wohnung ist ab 01.08.2025 verfügbar.
Zusammengefasst besteht dieses Immobilienangebot aus:
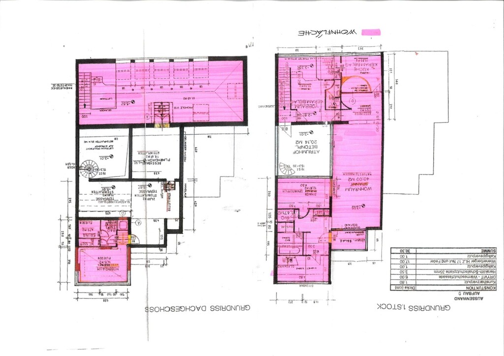
• ca. 186 m² Wohnfläche
• ca. 20 m² Atriumhof + ca. 58 m² Dachterrassen
• 5 Zimmer (davon 3 mögliche Schlafzimmer)
• 2 Bäder
• 3 WCs
• 1 Autoabstellplatz + ca. 3 m² Kellerabteil Wohnungszubehör
Kaufpreis: 835.000 € *)
*) Die Kaufertragserstellung und treuhändische Abwicklung ist an die Beauftragung der RA-Kanzlei fleissner.at/rechtsanwaelte/ gebunden, die für eine Sonderkondition von 0,83 % netto zzgl 20% Ust, daher insgesamt 1,0 % inkl. 20 % Ust. vom Vertragspreis den Kaufvertrag abwickelt.
Highlights dieser aussergewöhnlichen Immobilie
• Exklusive Dachgeschoss-Maisonette mit ca. 186 m² Wohnfläche auf zwei Ebenen,
o 110,49 m² Wohnfläche auf der ersten Ebene + 20,14 m Atriumhof und
o 75,92 m² auf der Dachgeschossebene mit bis zu 5,57 m Raumhöhe im Dachgeschoss-Living + 58,56 m² Dachgeschossterrassen;
• Grosszügige Wohnbereiche mit bis zu 5,57 m Raumhöhe – das 51 m² grosse Dachgeschoss-Living bildet das Herzstück der Wohnung;
• Lichtdurchflutetes Atrium mit ca. 20 m² als geschützter Innenhof mit mediterranem Flair;
• Sonnige Dachterrassen auf mehreren Ebenen mit insgesamt ca. 79 m² – ideal zum Entspannen oder für stilvolle Outdoor-Dinner;
• bis zu 3 (mögliche) Schlafzimmer für Familie oder Gäste;
• 2 sehr gut ausgestattete Badezimmer mit Wellness-Charakter – darunter ein Bad mit Whirlpool und Dusche;
• WCs, darunter eines mit integrierter Waschfunktion;
• sehr guter, solider Zustand – laufend gepflegt, mit qualitativer Ausstattung in Sanitär und Bodenbelägen;
• Autoabstellplatz als Wohnungszubehör und ein ca. 3 m² grosses Kellerabteil;
• Gemeinschaftswaschküche im Haus für zusätzlichen Komfort;
• Ruhige, grüne Lage in einer der begehrtesten Wohngegenden Wiens.
Lage & Umgebung
Dieses aussergewöhnliche Studio/Loft befindet sich in idyllischer Grünruhelage des 19. Bezirks, unweit von Neustift am Walde und der American International School. Die Umgebung zeichnet sich durch Weinberge, Waldnähe und charmante Heurige aus – eine Oase für Natur- und Ruhesuchende.
• American International School Vienna in unmittelbarer Nähe
• Gute Verkehrsanbindung in die Innenstadt
• Spazier- und Wanderwege direkt vor der Haustür
• Nahversorgung, Kindergärten und Schulen fussläufig erreichbar
Fazit
Diese Dachgeschossmaisonette vereint grosszügiges Wohnen, moderne Ausstattung und Naturverbundenheit in einer der exklusivsten Wohngegenden Wiens. Ein seltenes Angebot mit viel Platz, Privatsphäre und Wohnqualität – ideal für Künstler, Gewerbetreibende aber auch Familien oder Paare mit gehobenen Ansprüchen.
Hat diese Immobilie Ihr Interesse geweckt?
Dann fragen Sie unverbindlich an, Hr. DI Corneliu TANASESCU steht Ihnen unter +43 699 118 22 583 gerne beratend und persönlich zur Verfügung.
Entspricht das Objekt nicht Ihren Vorstellungen? Weitere Angebote finden Sie auf
www.VALMACOR.at
Wir behandeln Sie besser!
______________________
Valmacor Object Nr.: 3358/2021
This and more offers on www.VALMACOR.at
A non usual top-floor maisonette with atrium courtyard & roof terraces is offered for sale in Neustift am Walde near the American International School. The apartment will be available from August 1, 2025.
In summary, this real estate offer consists of:
• approx. 186 m² living space
• approx. 20 m² atrium courtyard + approx. 58 m² roof terraces €
• rooms (including 3 possible bedrooms)
• 2 bathrooms
• 3 WCs
• 1 parking space + approx. 3 m² cellar compartment Apartment accessories
Purchase price: 835.000 € *)
*) *) The purchase agreement and fiduciary processing are linked to the commissioning of the law firm fleissner.at/rechtsanwaelte/, which shall draft the purchase agreement for a special rate of 0.83% net plus 20% VAT, i.e. a total of 1.0% including 20% VAT of the contract price.
Highlights of this exceptional property:
• Exclusive top-floor maisonette with approx. 186 m² of living space on two levels,
o 110.49 m² living space on the first level + 20.14 m atrium courtyard and
o 75.92 m² living space on the attic level with up to 5.57 m room height in the attic living + 58.56 m² attic terraces;
• Spacious living areas with up to 5.57 m room height - the 51 m² attic living forms the heart of the apartment;
• Light-flooded atrium with approx. 20 m² as a sheltered inner courtyard with Mediterranean flair;
• Sunny roof terraces on several levels with a total of approx. 79 m² - ideal for relaxing or for stylish outdoor dinners;
• up to 3 (possible) bedrooms for family or guests;
• 2 very well-equipped bathrooms with wellness character - including a bathroom with whirlpool and shower;
• 3 WCs, including one with integrated washing function;
• very good, solid condition - constantly maintained, with high-quality fittings in sanitary facilities and floor coverings;
• car parking space as an apartment accessory and a cellar compartment of approx. 3 m²;
• Communal laundry room in the building for added convenience;
• Quiet, green location in one of Vienna´s most sought-after residential areas.
Location & surroundings
This extraordinary studio/loft is located in an idyllic green and quiet location in the 19th district, not far from Neustift am Walde and the America International School. The surrounding area is characterized by vineyards, proximity to the forest and charming wine taverns - an oasis for nature and peace seekers.
• American International School Vienna in the immediate vicinity
• Good transport links to the city center
• Walking and hiking trails right on the doorstep
• Local amenities, kindergartens and schools within walking distance
Conclusion
This top-floor maisonette combines spacious living, modern furnishings and closeness to nature in one of Vienna´s most exclusive residential areas. A rare offer with plenty of space, privacy and living quality - ideal for artists, professionals, but also families or couples with high standards.
Is this property of interest to you?
Then please request a non-binding offer, Mr. DI Corneliu TANASESCU will be happy to advise you personally under +43 699 118 22 583.
Does the property not meet your expectations?
More offers can be found on
www.VALMACOR.at
We treat you better!
______________________
| Angaben gemäss gesetzlichem Erfordernis: | |||
| Heizwärmebedarf: | 140.2 kWh/(m²a) | ||
| Klasse Heizwärmebedarf: | D | ||
| Faktor Gesamtenergieeffizienz: | 3.3 | ||
| Klasse Faktor Gesamtenergieeffizienz: | F | ||
| Objekt Nr. 2021 | |
|---|---|
| Zimmeranzahl | 5 |
| Wohnfläche ca. | 186,41 m² |
| Betriebskosten | € 1.173,40 |
| Provision/Courtage | 3% zzgl. USt. |
| Frei ab | 01.08.2025 |
| Kaufpreis | € 790.000,00 |
| Immobilientyp: | Wohnung |
| Etage | 1 |
| Anzahl Etagen | 2 |
| Anzahl Schlafzimmer | 3 |
| Anzahl Badezimmer | 2 |
| Heizungsart | Zentralheizung |
| Stellplatzart | Freiplatz |
| Baujahr | 1973 |
| Zustand | Sehr gut |
| Balkon/Terrasse | ja |
| Anzahl Stellplätze | 1 |
| Energieausweisart | Bedarf |
| Heizwärmebedarf-Wert | 140.2 |
| Heizwärmebedarf-Klasse | D |
| Gesamtenergieeffizienz-Wert | 3.3 |
| Gesamtenergieeffizienz-Klasse | F |
Adresse
Wien 19., Döbling
Österreich
Kaufpreis
€ 790.000,00














































